当前位置:
华润幸福里 142平完美体现新中式古典风
2900人查看过该案例
案例信息

【区域】:赣州丛一楼装饰公司

【风格】:新中式

【户型】:大户型

【楼盘】:赣州 华润中心万象城

【面积】:142.0m²

【造价】:9.00万元
案例详情
姓 名:余剑威
资 质:毕业于江西师大美院环境艺术设计专业
中国室内装饰设计协会会员
从事家居及商业装饰设计8年"
荣 誉:2009年家居类作品入围{浙江省2009年设计之都特展}
2010-2011年度美化家居室内设计大赛优秀奖
所属机构:赣州丛一楼装
设计说明: 新中式风格是一种既继承了中国古典园林的基本元素及造园手法,又融合了现代简约的几何图案及线条的设计风格,通过对中国古典园林设计思想的理解并提炼,用现代的符号将中国园林的神韵体现出来就是新中式风格。
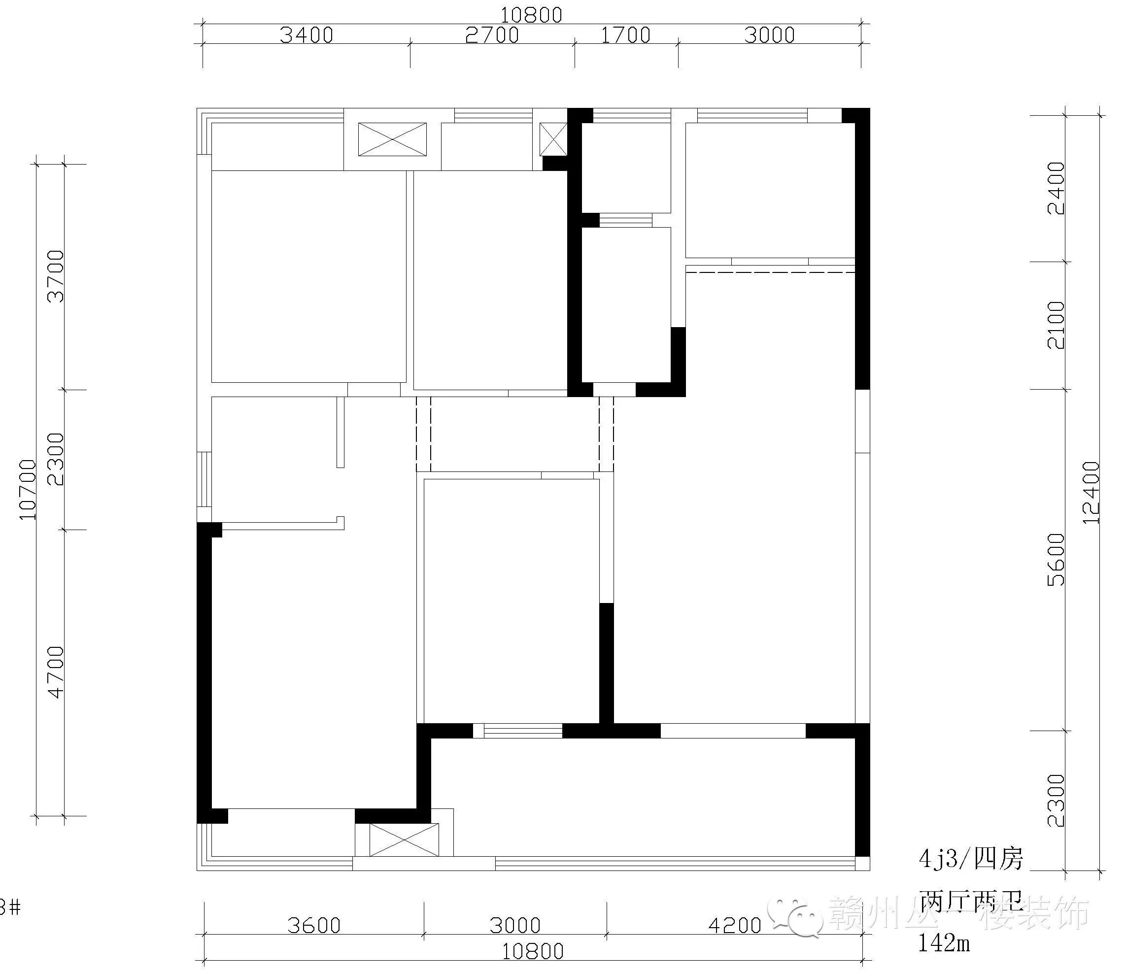
原始结构图:四房两厅 142平米 南北通透
平面布置图:户型方正 区域划分规整
客厅效果图:新中式风格 古典韵味
餐厅效果图:简单古朴 素雅舒适
- 该风格的其他案例
- 擅长该风格的设计师
查看更多






