当前位置:
正荣御园130平米户型美式风格设计案例
2413人查看过该案例
案例信息

【区域】:丛一楼装饰朝阳洲公司

【风格】:美式

【户型】:三居

【楼盘】:正荣御园

【面积】:130.0m²

【造价】:12.00万元
案例详情
设计师:龚梦思
楼 盘:正荣御园
户 型:三房两厅两卫
面 积:130平方米
风 格:美式
造 价:12万
设计用材:马可波罗仿古砖、西西里啡大理石、水曲柳索色、 箭牌卫浴、大自然地板,主材匀是业主自购。
设计说明:住宅设计讲究的是实用、舒适、温馨,让居住其间的人喜欢与爱恋。美式情怀的风格设计,兼具简洁、舒适的现代人宜居生活概念,以生活情绪来点缀空间的每一个细节,无形中透露出主人对空间的主人翁意识。客厅的铺贴色调保持与家具的色系一致。客厅与餐厅之间整体铺贴,利用吊顶的设计形成空间的划分。空间采用圆弧角设计,让整个空间更加缓和。整个空间开阔大方,厨房扩到阳台,大大增加了空间的使用面积,提升使用舒适度。卧室塑造的是另一种私密生活的舒适与温馨,原卫生间改成衣帽间,把主卫隐藏在衣帽间内。长辈房充分考虑老人行动的便捷与储物功能的注重,做成榻榻米形式。小孩房利用阳台做成半开放书房,形成套房。其中蓝色乳胶漆、墙纸与床头背景,都帮孩子营造出一个梦。体现出父母对孩子的浓浓爱意。

客厅

主卧

小孩房

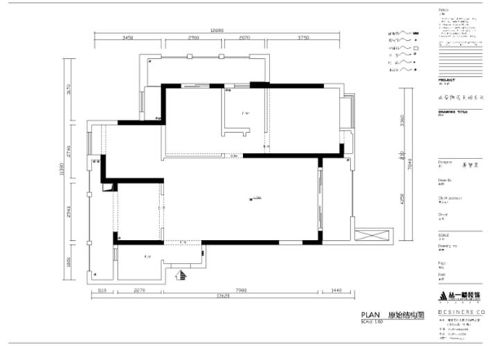
原始结构

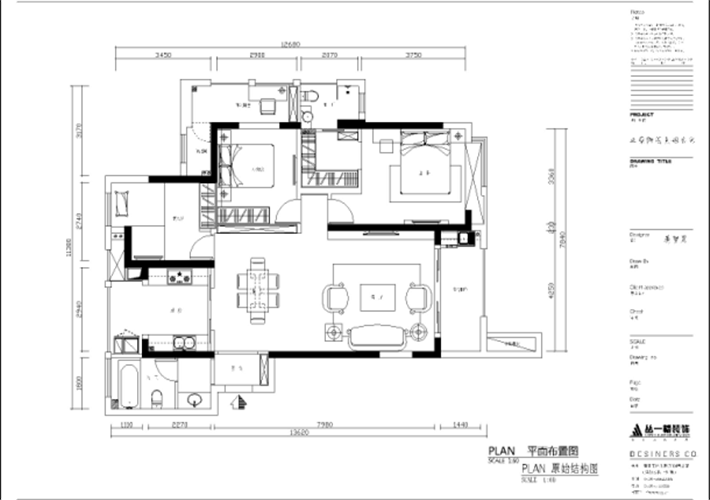
平面方案
餐厅实景
厨房实景
客厅实景
阳台盆景
- 该风格的其他案例
- 擅长该风格的设计师
查看更多






